Tiêu Chuẩn Thiết Kế Nhà Hàng

Thiết kế nhà hàng không chỉ đơn thuần là tạo ra một không gian đẹp mắt mà còn đòi hỏi phải đáp ứng hàng loạt các tiêu chuẩn khắt khe về công năng, thẩm mỹ và an toàn. Từ khu vực bếp, nội thất, hệ thống điện nước, cho tới khu vực ăn uống, nhà vệ sinh hay bãi đỗ xe, mỗi yếu tố đều có những yêu cầu riêng để đảm bảo trải nghiệm tốt nhất cho thực khách và sự vận hành hiệu quả cho nhà hàng. Bài viết dưới đây sẽ tổng hợp những tiêu chuẩn thiết kế nhà hàng quan trọng mà các chủ đầu tư cần lưu ý để xây dựng mô hình kinh doanh thành công.

Tiêu Chuẩn Thiết Kế Nhà Hàng

Tiêu chuẩn thiết kế nhà hàng là bộ quy tắc và nguyên tắc giúp đảm bảo rằng không gian được phân bổ hợp lý, vận hành hiệu quả với sự an toàn và vệ sinh. Một trong những yếu tố quan trọng là không gian cho thực khách. Theo tiêu chuẩn, khoảng cách giữa mỗi chiếc ghế cần từ 18 inch (45 cm) và giữa mỗi bàn là 42-60 inch (107-152 cm) để tạo sự thoải mái.

Kích thước ghế ăn cũng rất cần thiết, với chiều cao từ 0.44 đến 0.47m và chiều rộng từ 0.4 đến 0.45m. Những thông số này không chỉ giúp khách hàng thoải mái mà còn phản ánh sự chăm sóc của nhà hàng đến trải nghiệm của thực khách. Chiều cao trần nhà thì nên từ 2.8 đến 3m, vừa đảm bảo tính thẩm mỹ mà cũng mang lại cảm giác rộng rãi.

Ngoài ra, việc bố trí bếp gần nhà hàng là vô cùng quan trọng. Điều này không chỉ tiết kiệm không gian mà còn tăng hiệu quả trong việc phục vụ món ăn. Chưa kể, nhà hàng cũng cần có hệ thống thông gió tốt, tường phẳng và đảm bảo sạch sẽ để ngăn chặn động vật hay côn trùng gây hại. Quy tắc thiết kế chi tiết như thế này sẽ góp phần lớn giúp nâng cao chất lượng dịch vụ và sự hài lòng của khách hàng.

Tiêu chuẩn thiết kế nhà hàng hài hòa thẩm mỹ tiện dụng

Tiêu Chuẩn Thiết Kế Nội Thất Nhà Hàng

Thiết kế nội thất nhà hàng không chỉ đơn thuần là việc trang trí, mà còn là một quy trình nghiêm ngặt với nhiều tiêu chuẩn cụ thể. Theo tiêu chuẩn thiết kế nhà hàng TCVN, vật liệu và chất liệu được sử dụng phải vừa bền, vừa đẹp, hạn chế tối đa những loại kém chất lượng. Điều này không chỉ đảm bảo tính thẩm mỹ mà còn ảnh hưởng đến sự an toàn và vệ sinh trong quá trình phục vụ.

Không gian cho khách hàng cũng là yếu tố quan trọng. Thiết kế yêu cầu cần có khoảng cách hợp lý giữa các ghế và bàn. Mỗi ghế nên có khoảng cách khoảng 45 cm, trong khi khoảng cách giữa các bàn phải từ 107 đến 152 cm để tạo sự thoải mái tối đa cho thực khách. Đối với khu vực ăn uống, diện tích chiếm khoảng 50%-60% tổng diện tích nhà hàng, giúp không gian luôn thông thoáng và dễ chịu.

Bên cạnh đó, các khu vực khác như bếp cũng rất quan trọng. Bếp cần được thiết kế gần khu vực ăn uống, có diện tích tương xứng và đảm bảo thông gió tốt. Một không gian nhà hàng không chỉ đẹp mà còn phải có tổ chức rõ ràng và thuận tiện cho cả nhân viên và thực khách. Từng chi tiết nhỏ trong thiết kế đều góp phần tạo nên trải nghiệm tuyệt vời cho thực khách.

Tiêu chuẩn thiết kế nội thất nhà hàng sang trọng đẳng cấp

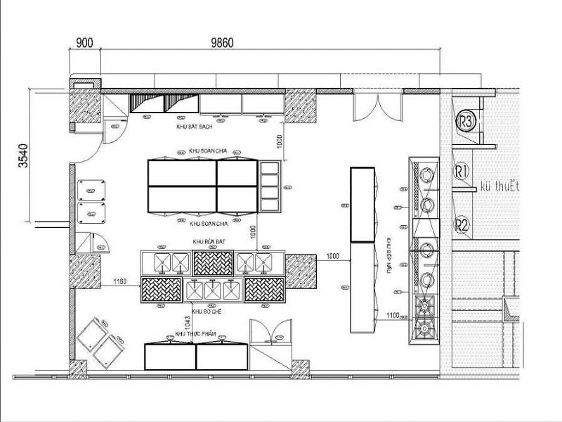
Tiêu Chuẩn Thiết Kế Bếp Nhà Hàng

Tiêu chuẩn thiết kế bếp nhà hàng đóng vai trò quan trọng trong việc đảm bảo hiệu quả vận hành. Một trong những yếu tố quan trọng nhất là kích thước lối đi trong bếp, nên đạt từ 1 đến 3m. Điều này giúp nhân viên dễ dàng di chuyển, tạo điều kiện thuận lợi cho quy trình chế biến thực phẩm.

Không gian bếp cần chiếm khoảng 30-40% tổng diện tích của nhà hàng, trong khi phần còn lại sẽ dành cho khu vực phục vụ thực khách. Thiết kế cũng phải đảm bảo các khu chức năng được phân chia hợp lý, như khu nấu, khu rửa, và khu chuẩn bị nguyên liệu. Điều này không chỉ tối ưu hóa thời gian làm việc mà còn giúp giảm thiểu sự cố trong quá trình phục vụ.

Ngoài ra, việc chọn kích thước ghế và bàn cũng rất quan trọng. Ghế thường có chiều cao từ 0,44 đến 0,47m, với khoảng cách đến mặt bàn là 0,3m. Những yếu tố này tạo ra sự thoải mái cho khách hàng, đồng thời cũng góp phần nâng cao trải nghiệm ăn uống tại nhà hàng.

Không gian bếp nhà hàng đạt chuẩn chuyên nghiệp và hiện đại

Tiêu Chuẩn Thiết Kế Hệ Thống Điện Nước Nhà Hàng

Trong việc triển khai thiết kế hệ thống điện nước cho một nhà hàng, quy trình đầu tiên là cực kỳ quan trọng. Điều này không chỉ đảm bảo an toàn mà còn giúp nâng cao chất lượng phục vụ. Theo tiêu chuẩn TCVN 9206:2012, việc đặt thiết bị điện trong nhà hàng phải tuân thủ quy phạm, từ lắp đặt hệ thống chiếu sáng cho đến ổ cắm.

Khi thiết kế hệ thống cấp nước, cần chú ý đến việc lựa chọn loại ống phù hợp, chẳng hạn như ống PPR hoặc HDPE chịu nhiệt, để đảm bảo áp lực và lưu lượng nước luôn ổn định. Đường ống xả thải nên thiết kế với kích thước đủ lớn để dễ dàng tiêu nước và rác thải, cũng như cần có các điểm ngắt đoạn để kiểm tra và bảo trì khi cần.

Không chỉ vậy, việc sử dụng các vật liệu và chất liệu bền, đẹp cũng là điều không thể thiếu trong quá trình thiết kế. Hệ thống điện và nước cần đồng bộ, không chỉ về mặt kỹ thuật mà còn phải tạo ra không gian đẹp mắt, góp phần nâng cao trải nghiệm cho khách hàng.

Tiêu chuẩn thiết kế hệ thống điện nước nhà hàng chuyên nghiệp hiện đại

Tiêu Chuẩn Thiết Kế Hệ Thống Thoát Nước Nhà Hàng

Trong việc thiết kế hệ thống thoát nước cho nhà hàng, tiêu chuẩn TCVN 4474: 1987 và TCVN 7957:2023 đóng vai trò quan trọng. Tiêu chuẩn này không chỉ quy định các yêu cầu kỹ thuật mà còn đề ra những hướng dẫn chi tiết về lựa chọn vật liệu, phương pháp thi công, và bảo trì hệ thống.

Một yếu tố quan trọng trong thiết kế hệ thống thoát nước là độ dốc của ống. Theo tiêu chuẩn, độ dốc lý tưởng cho ống thoát nước nên nằm trong khoảng từ 6.5mm đến 30mm. Điều này giúp nước và rác thải được tiêu thoát hiệu quả, tránh tình trạng ứ đọng.

Hệ thống đường ống cần có kích thước phù hợp, cho phép nước chảy dễ dàng cùng với các chất thải. Thiết kế cũng nên có các điểm ngắt đoạn để thuận tiện cho việc kiểm tra và bảo trì định kỳ.

Ngoài ra, sơ đồ cấp thoát nước là tài liệu không thể thiếu, giúp người vận hành hiểu rõ vị trí của đường ống, máy bơm và các thiết bị khác. Việc tuân thủ tiêu chuẩn này sẽ đảm bảo cho hệ thống hoạt động hiệu quả và lâu dài.

Hệ thống thoát nước nhà hàng đáp ứng tiêu chuẩn vệ sinh và hiệu suất cao

Tiêu Chuẩn Thiết Kế Khu Vực Ăn Uống

Tiêu chuẩn thiết kế khu vực ăn uống trong nhà hàng tại Việt Nam đang được áp dụng khá phổ biến, với nguyên tắc phân bổ diện tích 50:30:20. Theo đó, khu vực ăn uống chiếm từ 50 đến 60% tổng diện tích của nhà hàng. Điều này rất quan trọng, bởi không gian rộng rãi giúp khách hàng cảm thấy thoải mái hơn khi thưởng thức bữa ăn.

Khi thiết kế khu vực này, các kiến trúc sư cần chú ý đến việc sắp xếp bàn ghế sao cho phù hợp. Mật độ chỗ ngồi tốt nhất nên từ 1m2 đến 1,4m2 cho mỗi khách hàng, nhằm đảm bảo sự thoải mái và trải nghiệm dịch vụ tốt nhất. Hơn nữa, cần có khoảng trống hợp lý dành cho việc di chuyển, giúp cho việc phục vụ diễn ra trơn tru hơn.

Một phần diện tích nữa, khoảng 30%, được dành cho khu bếp. Khu bếp nên được thiết kế theo dây chuyền hợp lý để tối ưu hóa quy trình làm việc, mang lại hiệu quả cao nhất. Với tiêu chuẩn này, nhà hàng sẽ không chỉ thu hút được khách hàng mà còn có thể hoạt động hiệu quả hơn.

Mô tả không gian ăn uống hài hòa và tiện nghi

Tiêu Chuẩn Thiết Kế Khu Vực Đón Tiếp

Trong thiết kế khu vực đón tiếp tại các khách sạn, tiêu chuẩn quốc gia TCVN 4391:2015 đóng vai trò rất quan trọng trong việc xây dựng một không gian thuận tiện và ấn tượng. Quầy lễ tân nên có chiều cao khoảng 1100mm và chiều dài 2200mm, nhưng kích thước này có thể điều chỉnh tùy vào từng loại hình dịch vụ. Sự linh hoạt trong thiết kế giúp tạo nên sự thoải mái cho nhân viên cũng như khách hàng.

Không chỉ là nơi đón tiếp, khu vực này còn cần đảm bảo sự kết nối hài hòa giữa các chức năng khác nhau như khu ngủ, khu vực công cộng và dịch vụ. Thiết kế kiến trúc phải không chỉ đẹp mắt mà còn phải phù hợp với tính chất kinh doanh, tạo nên một không gian thân thiện và sang trọng.

Nội thất cũng là một yếu tố không thể thiếu, việc lựa chọn đồ nội thất cần phải chú ý đến sự phù hợp với không gian và mục đích sử dụng. Một quầy lễ tân đẹp mắt sẽ tạo ấn tượng tốt cho khách, phản ánh chất lượng dịch vụ và văn hóa của cơ sở lưu trú. Tất cả yếu tố này đều góp phần tạo nên một trải nghiệm đáng nhớ cho du khách.

Tiêu chuẩn thiết kế khu vực đón tiếp sang trọng và chuyên nghiệp

Tiêu Chuẩn Thiết Kế Nhà Vệ Sinh Trong Nhà Hàng

Khi thiết kế nhà vệ sinh cho nhà hàng, việc tạo ra không gian thoáng đãng và hợp lý là rất quan trọng. Diện tích cần được xác định rõ ràng, thường từ 1,8 đến 2m² cho mỗi khách. Điều này không chỉ giúp khách hàng cảm thấy thoải mái mà còn tạo ấn tượng tốt ngay từ lần đầu tiên.

Lựa chọn vật liệu chất lượng cũng là một yếu tố quyết định. Vật liệu dễ lau chùi, chống thấm và bền đẹp giúp cho không gian luôn sạch sẽ và sang trọng. Đồng thời, hệ thống thoát nước phải hiệu quả để tránh tình trạng ứ đọng, đảm bảo môi trường vệ sinh sạch sẽ.

Một hệ thống chiếu sáng và thông gió hợp lý giúp không gian luôn sáng sủa và thoáng mát. Điều này cực kỳ quan trọng trong việc tạo cảm giác thoải mái cho khách hàng. Cuối cùng, dễ dàng tiếp cận và tiện ích cho người sử dụng cũng cần được chú ý. Phải đảm bảo có đủ chỗ cho các đối tượng khác nhau, từ người lớn đến trẻ em, đảm bảo mọi người đều cảm thấy được chào đón.

Tiêu chuẩn thiết kế nhà vệ sinh nhà hàng chuyên nghiệp hiện đại

Tiêu Chuẩn Thiết Kế Hệ Thống Chiếu Sáng Nhà Hàng

Khi thiết kế hệ thống chiếu sáng cho nhà hàng, việc tuân thủ Tiêu chuẩn Việt Nam TCVN 7114-1:2008 là rất quan trọng. Tiêu chuẩn này quy định các chỉ tiêu về độ rọi, độ đồng đều và chỉ số hoàn màu của ánh sáng. Ánh sáng không chỉ cần đủ độ sáng cho các hoạt động mà còn phải đạt yêu cầu về mặt thẩm mỹ và cảm xúc của khách hàng.

Để tạo không gian ấn tượng, thiết kế chiếu sáng cần xác định rõ mục đích sử dụng từng khu vực. Mỗi không gian như khu vực ăn uống, quầy bar hay lối đi lại sẽ có nhu cầu ánh sáng khác nhau. Bên cạnh đó, việc tận dụng ánh sáng tự nhiên cũng là một yếu tố không thể bỏ qua, giúp tiết kiệm năng lượng và tạo sự thoải mái cho khách hàng.

Chọn loại đèn phù hợp với không gian, đảm bảo ánh sáng không bị nhấp nháy và chỉ số hoàn màu cao cũng là điều cần chú trọng. Thực hiện đúng các quy định của QCVN 09:2013/BXD sẽ giúp nhà hàng vừa đẹp mắt, vừa hiệu quả trong việc tiết kiệm năng lượng. Tóm lại, hệ thống chiếu sáng không chỉ đơn thuần là cần thiết mà còn làm tăng giá trị thẩm mỹ không gian nhà hàng.

Tiêu chuẩn thiết kế chiếu sáng nhà hàng hài hòa ánh sáng và không gian

Trong ngành công nghiệp ẩm thực ngày nay, việc thiết kế nhà hàng không chỉ đơn thuần là tạo ra một không gian ăn uống mà còn phải đảm bảo yếu tố thẩm mỹ, công năng và trải nghiệm khách hàng. Các tiêu chuẩn thiết kế nhà hàng, từ việc lựa chọn phong cách kiến trúc, sắp xếp nội thất cho đến ánh sáng và âm thanh, đều đóng vai trò quan trọng trong việc tạo dựng một bầu không khí hấp dẫn. Đầu tư vào thiết kế phù hợp không chỉ thu hút khách hàng mà còn góp phần nâng cao giá trị thương hiệu, từ đó tạo nền tảng vững chắc cho sự phát triển bền vững của nhà hàng.